Segrate (MI) - Scuola media primaria: pianta
Segrate (MI) - Scuola media primaria: prospetti
Segrate (MI) - Scuola media primaria: vista della corte interna
Segrate (MI) - Scuola media primaria: scorcio di una facciata
Segrate (MI) - Scuola media primaria: scorcio di una facciata
Segrate (MI) - Scuola materna: pianta
Segrate (MI) - Scuola materna: prospetto
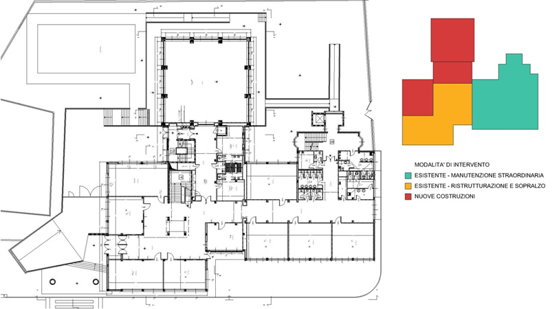
Castiglione Olona (VA) - Ampliamento scuola elementare: planimetria
Castiglione Olona (VA) - Ampliamento scuola elementare: modello virtuale
Castiglione Olona (VA) - Ampliamento scuola elementare: modello virtuale
Milano - Scuola materna: studio di architettura biologica - pianta
Milano - Scuola materna: studio di architettura biologica - vista
Milano - Scuola materna: studio di architettura biologica - vista
Cazzago San Martino (BS) - Scuola materna: modello virtuale
Cazzago San Martino (BS) - Scuola materna: modello virtuale
Castiglione Olona (VA) - Palestra polivalente: pianta
Castiglione Olona (VA) - Palestra polivalente: sezione e prospetto longitudinali
Castiglione Olona (VA) - Palestra polivalente: scorcio esterno
Castiglione Olona (VA) - Palestra polivalente: scorcio esterno
Giulianova (TE) - Scuola media superiore: planimetria
Giulianova (TE) - Scuola media superiore: prospetti
Giulianova (TE) - Scuola media superiore: modello virtuale
Giulianova (TE) - Scuola media superiore: modello virtuale
Monasterolo del Castello (BG) - Scuola elementare: planimetria
Monasterolo del Castello (BG) - Scuola elementare: modello virtuale
Malnate (VA) - Scuola materna: pianta
Malnate (VA) - Scuola materna: prospetti
Malnate (VA) - Scuola materna: modello virtuale
Malnate (VA) - Scuola materna: modello virtuale
Malnate (VA) - Scuola materna: sezione longitudinale
Pogliano Milanese (MI) - Oratorio polifunzionale: pianta
Pogliano Milanese (MI) - Oratorio polifunzionale: prospettive